1 Bentley Drive, Unit 3, FRANKLIN LAKES, NJ 07417 - $900,000
1 Bentley Drive, Unit 3, FRANKLIN LAKES, NJ
- MLS #: 26010303
- County: Bergen County
- Type: CONDO/COOP/ TWNHSE
- Style: Condo
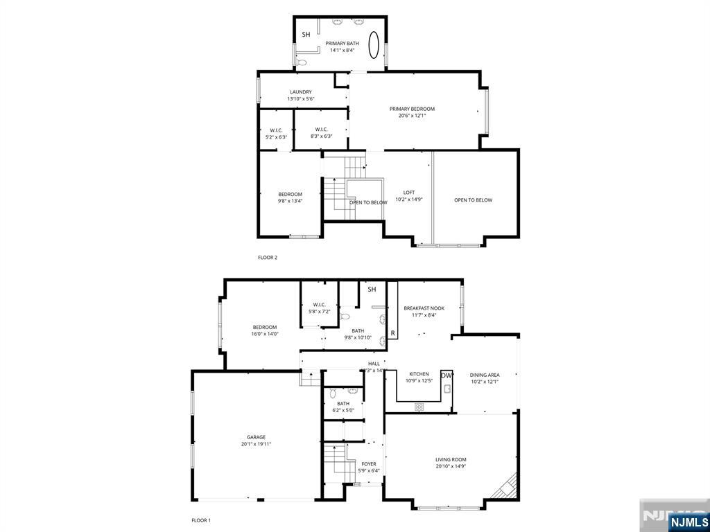
- Bedrooms: 3
- Bathrooms: 2 full and 1 half bath(s)
- Garage/Parking: Attached
- Taxes: $8,631
Live the Franklin Lakes lifestyle you’ve always imagined in this reimagined Mountain Shadows townhome. Perfectly positioned end unit at 1 Bentley Drive, this home was completely gutted and rebuilt with no expense spared. Two primary suites one on the first floor and one above create flexibility for multigenerational living. Experience sleek stone surfaces, luxury flooring, and modern craftsmanship throughout. Residents of this sought-after community enjoy the tranquility of tree-lined streets, excellent schools, and a true sense of prestige. With the pool, tennis, and pickleball courts only steps away, this is luxury living at its finest. For more information on this home please contact Gene Russo- 201-273-1144
Features:
| Subdivision/ Complex: | None |
| HOA Fee: | $857 per |
| Year Built: | 1980 |
| Garage: | Attached |
| Heating/ Cooling Type: | Baseboard,Gas,Hot Water |
| Fireplaces: | 1 Fireplace,Gas |
| Amenities: | Pool Outdoor,Pickleball Court(s) |
| Appliances: | Dishwasher,Microwave |
| Included: | Dishwasher,Microwave |
| Virtual Tour: | https://www.dropbox.com/scl/fo/5sos807we8jd5x2gu8mhz/AJN6qCTgO9dDTtscZ53pGVY/1%20Bently%20UNBRANDED. |
Listing Agent:
Thomas Russo
Listing Broker:
RE/MAX SELECT - Oakland
201-337-5555
Inquire about this property
Inquire about this Property


The data relating to real estate for sale on this web site comes in part from the Internet Data Exchange Program of the NJMLS. Real Estate listings held by brokerage firms other than Gilsenan & Company REALTORS are marked with the Internet Data Exchange logo and information about them includes the name of the listing brokers. Last date updated: 04/04/26 Source: New Jersey Multiple Listing, Inc. Some real estate firms do not participate in Internet Data Exchange © and their listings do not appear on this website. Some properties listed with participating firms do not appear on this website at the request of the seller. All information deemed reliable but not guaranteed. © 2026 New Jersey Multiple Listing Service Inc. All rights reserved.
Information herein is deemed reliable but not guaranteed.